Little Alne

For Sale | 5 Bed
£1,250,000
Added 26-09-2025

Property Summary

A character-filled, beautiful barn conversion with exposed beams and a wood-burning stove. Delightful secluded gardens and your own woodland beyond leading to the River Alne. (Totaling 1.3 acres approx). Five bedrooms and three reception room plus a garden room/ orangery and conservatory. 

Full Details

Little Alne is a charming hamlet nestled in the rolling Warwickshire countryside, conveniently positioned between Stratford-upon-Avon, Henley-in-Arden, and Alcester. These nearby towns provide excellent shopping, schooling, and recreational facilities, while the hamlet itself is home to a delightful craft centre. Just a short distance away, the village of Wootton Wawen offers a primary school, a welcoming village inn, a local shop, and a historic parish church.

The area is exceptionally well connected. The regional motorway network—including the M40, M42, M5, and M6—provides swift access across the Midlands and beyond. Birmingham International Airport and the NEC are also within easy reach. For commuters, there is a local rail service from Wootton Wawen station, with mainline connections from Warwick Parkway offering direct trains south to London Marylebone.

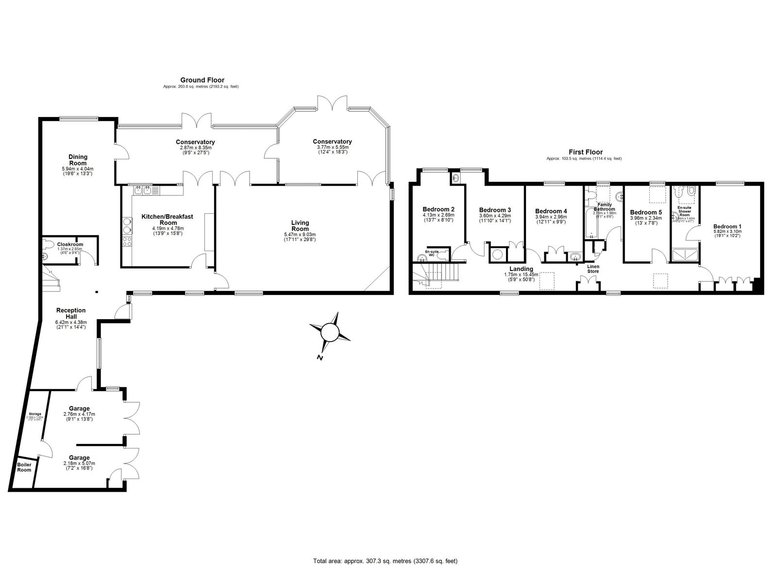
The Cart Hovel, originally a traditional barn, was sympathetically converted around 1990 to create spacious, well-proportioned living accommodation. Character features abound throughout, with exposed beams and timbers, oak-boarded floors, and a blend of flagstone and tiled flooring.

Set back from the lane behind secure electric gates (shared with just one neighbouring property), generous gravelled driveway with ample parking, external lighting, and access to the garage

WELCOMING RECEPTION HALL 

Flagstone floor, two radiators, double glazed windows to the front, stairs to first floor. 

GUEST WC

Heated towel rail, wall mounted electric heater, WC, wash basin.

DINING ROOM

Oak flooring, double glazed window to rear and door to the orangery, radiator and exposed beams.  

KITCHEN/ BREAKFAST ROOM

A wide range of fitted base, wall and drawer units, double bowl sink drainer, butchers block worktops, integrated dishwasher, fridge, built in NEFF oven, four ring gas hob, LPG feature Aga, ceramic tiled floor, glazed double doors to the 

ORANGERY/ GARDEN ROOM

 Ceramic tiled floor, air conditioning unit, cupboard with space and plumbing for washing machine, double glazed French doors into the gardens, double glazed windows and door to conservatory. 

CONSERVATORY

Ceramic tiled floor, double glazed roof and windows, French doors to the garden.

LARGE LIVING ROOM

An impressive room with corner fireplace incorporating a wood-burning stove and brick surround, Bessemer beam with stone hearth. Double glazed window to front and rear, radiator. 

 FIRST FLOOR LANDING

Airing cupboard, separate linen cupboard and built-in wardrobes and store cupboards.

MASTER BEDROOM

Double glazed window to rear, radiator, fitted wardrobes, exposed beams and door to;

ENSUITE SHOWER ROOM

WC, pedestal wash basin, double shower cubicle and thermostatic shower, heated towel rail, exposed beams, double glazed velux window to rear,  

BEDROOM TWO

Double glazed window to rear, radiator, exposed beams and opening to;

ENSUITE WC

With wash basin and WC, heated towel rail, extractor, wall light and shaver point. 

BEDROOM THREE

Double glazed window to rear, radiator, fitted bookcase and wardrobes, vanity unit with wash basin, wall light and shaver point.  

BEDROOM FOUR

Double glazed window to rear, radiator.  

Four double bedrooms with Bedroom 1 with built-in wardrobes and Ensuite Shower Room off with w.c. bidet, wash hand basin.

FAMILY BATHROOM

Matching suite panelled bath with thermostatic shower over, WC and pedestal wash basin, double glazed velux window to rear, wall light and shaver point, heated towel rail. 

BEDROOM FIVE/ STUDY

Exposed beams, radiator, double glazed velux window to rear. 

DOUBLE GARAGE

Situated off the reception hall with light and power points, two pairs of side-hinged double doors, loft over, boiler cupboard with Worcester Bosch LPG gas-fired boiler and separate storeroom.

THE GARDEN

Large block paved terrace, cold water tap, wide gated side passage, log store, generous laid lawn, well-stocked flower and shrub borders including a number of ornamental trees, timber garden shed and raised Wendy House.

At the end of the garden is a post, rail and wire fence with a gateway leading to a futher lawned garden area with compost heap and vegetable patches then leading onto a pretty woodland with frontage to the River Alne. The gardens extend to about 1.30 acres.

Property Features

  • COUNCIL TAX E. EPC TBC.
  • OOZING WITH CHARACTER
  • GATED DRIVEWAY
  • DOUBLE GARAGE
  • LARGE REAR GARDEN & WOODLANDS
  • CONSERVATORY
  • LARGE GARDEN ROOM/ ORANGERY
  • THREE RECEPTION ROOMS
  • FOUR/ FIVE BEDROOMS
  • A BEAUTIFUL BARN CONVERSION
  • View Brochure
  • Floorplan
  • Make an Enquiry


Mortgage Calculator

Stamp Duty Calculator